Charming bluestone villa in top-tier location

Date Available: Monday, 10 November 2025

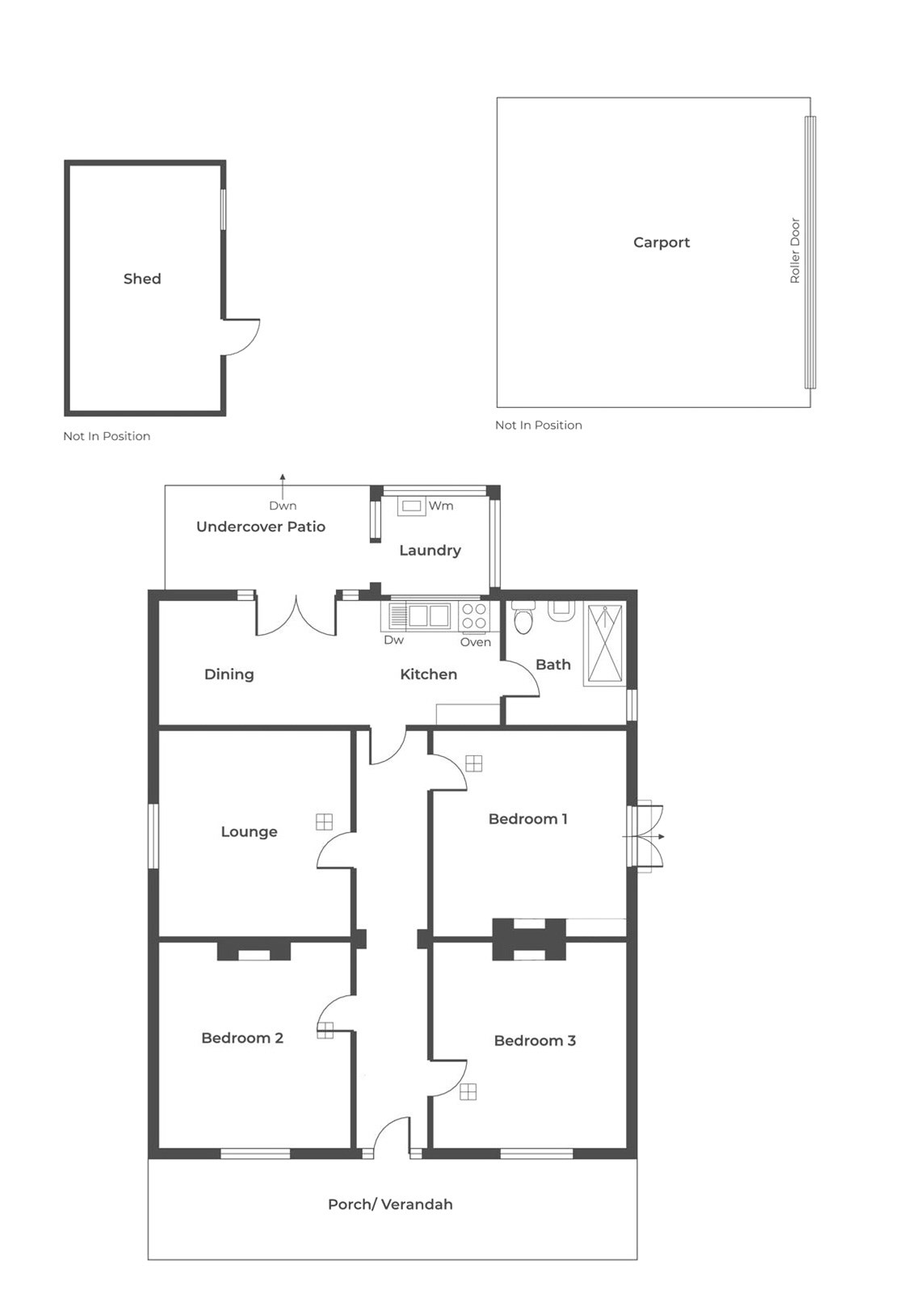
This lovingly renovated bluestone-fronted villa combines character, comfort and convenience in one of the eastern suburbs’ most sought-after pockets. Set in a quiet street yet only moments from The Avenues and an easy stroll to children’s play areas at Richards Park and Dunstan Grove, this home offers the perfect balance of lifestyle and ease.

Features we know you will love:

- Fully renovated villa originally built c1890
- Three generous light-filled bedrooms
- One bathroom with shower over bath
- Two secure, side-by-side undercover car spaces with remote-controlled access — a rare find in Stepney
- Polished timber floors, high ceilings and ornate cornices
- Leadlight glass windows and classic character detail throughout
- Contemporary kitchen with gas cooking, dishwasher and filter tap
- Separate lounge room
- Spacious laundry with room for washer and dryer
- Back veranda with café blind overlooking the rear lawn
- Beautifully established gardens with fruit trees and automatic irrigation
- Large shed for storage or hobbies
- Reverse-cycle air conditioning

Zoned for East Adelaide Primary School and Adelaide High/Adelaide Botanic High, with easy access to St Peter’s, PAC, Wilderness, Pembroke, Loreto and other leading schools.
This home is available unfurnished and is ready for you to move in and enjoy pure charm and convenience in the heart of Stepney.



  • Remote Garage Control
  • Secure Parking
  • Outdoor Entertainment Area
  • Shed
  • Fully Fenced
  • Floor Boards
  • Dishwasher
  • Reverse Cycle Air Conditioning